top of page

project/projekt.

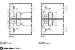
single family house estate/osiedle domów jednorodzinnych

where/gdzie. 

Kiełczów

stage/etap. 

when/kiedy.

planning permission/

pozwolenie na budowę

2016

04
05
06
01
02
03

© 2017 Siedemjeden Architekci LTD

bottom of page